为加快鹤山市珠西物流园区440784001011GB02592宗地02地块开发利用,现诚意向社会公开征集意向合作商。招商项目概况如下:
一、物业概况
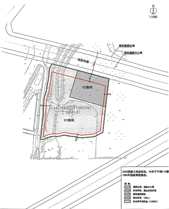
(一)坐落地址
鹤山市珠西物流园区站前东路旁,该地块区位优势明显,周边基础设施完善,交通便捷,发展潜力大。
(二)用地类型及地块面积
宗地编号:440784001011GB02592,用地性质为商业用地,面积3630.55平方米(5.44亩)。
现诚意征集地块合作商,地块规划用途为加油站、商业建筑及其附属配套设施等项目经营。
二、合作期限
原则上不超过20年。
三、合作方式
书面提交合作方案。
四、征集公告期限
自本公告发布之日起7个工作日
诚邀各界投资人在征集期限内踊跃报名登记洽商合作事宜。
联系人:
黄智勇、钟春华
咨询电话:
0750-8930055、8933371
报名登记地址:
鹤山市沙坪街道中山路223号三楼
附件:440784001011GB02592宗地示意图
鹤山市公营资产经营有限公司
2026年3月11日
附件
